Projekt Tytus


Projekt domu Tytus

Charakterystyka projektu

  • Projekt domu Tytus to dom z użytkowym poddaszem zaprojektowany w stylu nowoczesnej stodoły.
  • Prosta bryła z dwuspadowym dachem oraz licznymi przeszkleniami to wyznaczniki tego popularnego stylu architektonicznego.
  • Wykończenie elewacji w postaci jasnego tynku i drewnianej szalówki idealnie współgra z dachówką ceramiczną w kolorze ceglastym.
  • Układ wnętrza charakteryzuje się otwartą przestrzenią dzienną z szerokimi przeszkleniami, wysokim sufitem oraz antresolą.
  • W salonie znajdują się wysokie, przesuwne przeszklenia po obu stronach budynku, które zapewniają dużą ilość naturalnego światła oraz umożliwiają połączenie wnętrza z przylegającym do domu ogrodem.
  • Cześć dzienną poza salonem tworzy jadalnia oraz zlokalizowana tuż obok kuchnia ze spiżarnią.
  • Układ funkcjonalny parteru uzupełnia główna sypialnia, łazienka oraz pomieszczenie gospodarcze z możliwością aranżacji na dodatkową łazienkę, pralnię lub garderobę.
  • Na poddasze prowadzą jednobiegowe schody.
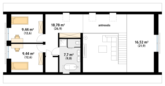
  • Poza przestronną antresolą zaprojektowano na nim dwie dodatkowe sypialnie oraz łazienkę z wanną i prysznicem.
  • W bryle budynku zaprojektowano również jednostanowiskowy garaż z miejscem do przechowywania lub majsterkowania.
autor: arch. Maciej Matłowski tel: 085-740-87-53

Dane techniczne

Pow. użytkowa domu: 143.49 m2
Pow. użytkowa garażu: 40.97
Pow. piwnicy: brak
Pow. zabudowy: 139.57 m2
Pow. dachu: 231.00 m2
Kubatura: 569.41 m3
Wysokość w kalenicy: 8.04 m
Gabaryty działki: 25.69 x 16.20 m

Rzuty

Parter

Rzut parteru projektu domu Tytus

Poddasze / Pierwsze piętro

Rzut parteru projektu domu Tytus

Elewacje

Elewacja 1 projektu domu Tytus Elewacja 2 projektu domu Tytus Elewacja 3 projektu domu Tytus Elewacja 4 projektu domu Tytus

Usytuowanie na działce

Usytuowanie na działce projektu domu Tytus - wizualizacja usytuowania

Schemat przekroju

Przekrój projektu Tytus - przekrój