Projekt Szyper 10 dr-ST


Projekt domu Szyper 10 dr-ST

Charakterystyka projektu

  • Dom jednorodzinny, parterowy z niewielkim poddaszem, niepodpiwniczony
  • Przeznaczony dla 3 – 4-osobowej rodziny
  • Obie sypialnie posiadają oddzielne łazienki oraz wspólną saunę
  • Pokój dzienny połączony z kuchnią i jadalnią daje możliwość ciekawej aranżacji wnętrza.
autor: arch. Tomasz Sobieszuk tel: 085-740-87-50

Dane techniczne

Pow. użytkowa domu: 125.20 m2
Pow. użytkowa garażu: brak
Pow. piwnicy: brak
Pow. zabudowy: 110.00 m2
Pow. dachu: 183.50 m2
Kubatura: 589.00 m3
Wysokość w kalenicy: 7.33 m
Gabaryty działki: 24.88 x 20.38 m

Rzuty

Parter

Rzut parteru projektu domu Szyper 10 dr-ST

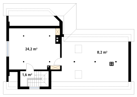
Poddasze / Pierwsze piętro

Rzut parteru projektu domu Szyper 10 dr-ST

Elewacje

Elewacja 1 projektu domu Szyper 10 dr-ST Elewacja 2 projektu domu Szyper 10 dr-ST Elewacja 3 projektu domu Szyper 10 dr-ST Elewacja 4 projektu domu Szyper 10 dr-ST

Usytuowanie na działce

Usytuowanie na działce projektu domu Szyper 10 dr-ST - wizualizacja usytuowania

Schemat przekroju

Przekrój projektu Szyper 10 dr-ST - przekrój