Projekt Poziomka dr-S


Projekt domu Poziomka dr-S

Charakterystyka projektu

  • Niewielki dom letniskowy w technologii szkieletu drewnianego.
  • Prosta bryła budynku została wzbogacona dwoma lukarnami, zadaszonym balkonem i tarasem.
  • Dom charakteryzuje się umiejętnym rozplanowaniem pomieszczeń na stosunkowo niewielkiej przestrzeni.
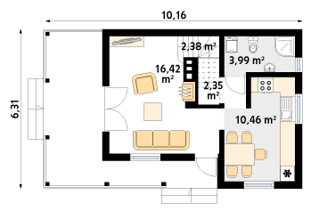
  • Na parterze znajduje się salon z wyjściem na zadaszony taras, jadalnia z aneksem kuchennym i łazienka.
  • Na poddaszu ulokowano cztery sypialnie oraz łazienkę. Dwie z nich posiadają wyjście na zadaszony balkon.
autor: arch. Tomasz Sobieszuk tel: 085-740-87-50

Dane techniczne

Pow. użytkowa domu: 58.99 m2
Pow. użytkowa garażu: brak
Pow. piwnicy: brak
Pow. zabudowy: 59.12 m2
Pow. dachu: 110.00 m2
Kubatura: 254.00 m3
Wysokość w kalenicy: 6.96 m
Gabaryty działki: 19.91 x 17.31 m

Rzuty

Parter

Rzut parteru projektu domu Poziomka dr-S

Poddasze / Pierwsze piętro

Rzut parteru projektu domu Poziomka dr-S

Elewacje

Elewacja 1 projektu domu Poziomka dr-S Elewacja 2 projektu domu Poziomka dr-S Elewacja 3 projektu domu Poziomka dr-S Elewacja 4 projektu domu Poziomka dr-S

Usytuowanie na działce

Usytuowanie na działce projektu domu Poziomka dr-S - wizualizacja usytuowania

Schemat przekroju

Przekrój projektu Poziomka dr-S - przekrój