Projekt Nefryt


Projekt domu Nefryt

Charakterystyka projektu

  • Rozbudowana bryła domu Nefryt składa się z trzech zróżnicowanych gabarytowo brył
  • Zróżnicowanie jest nie tylko bryłowe ale i funkcjonalne
  • W głównym obiekcie znajduje się pokój dzienny z jadalnią i przestronną kuchnią , w mniejszej części, część nocnej zaprojektowano 3 sypialnie i 2 łazienki
  • Dom jest parterowy jednak istnieje możliwość zaadaptowania poddasza na funkcje mieszkalne
  • Nefryt jest domem o charakterze rezydencjalnym.
autor: arch. Maciej Matłowski tel: 085-740-87-53

Dane techniczne

Pow. użytkowa domu: 381.40 m2
Pow. użytkowa garażu: 48.00
Pow. piwnicy: brak
Pow. zabudowy: 447.00 m2
Pow. dachu: 530.00 m2
Kubatura: 1600.00 m3
Wysokość w kalenicy: 8.13 m
Gabaryty działki: 40.89 x 32.99 m

Rzuty

Parter

Rzut parteru projektu domu Nefryt

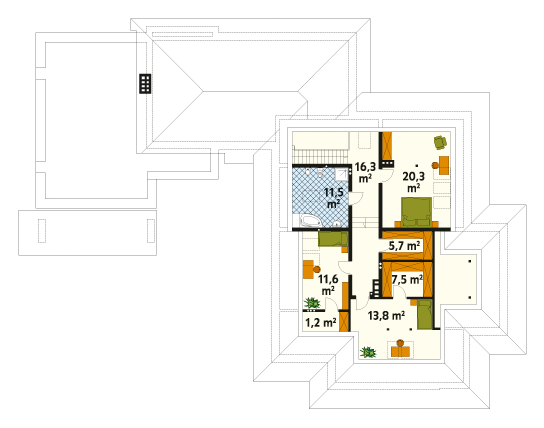
Poddasze / Pierwsze piętro

Rzut parteru projektu domu Nefryt

Elewacje

Elewacja 1 projektu domu Nefryt Elewacja 2 projektu domu Nefryt Elewacja 3 projektu domu Nefryt Elewacja 4 projektu domu Nefryt

Usytuowanie na działce

Usytuowanie na działce projektu domu Nefryt - wizualizacja usytuowania

Schemat przekroju

Przekrój projektu Nefryt - przekrój